L'explication des lieux est un document qui explique un projet architectural ou un croquis, un passeport d'inventaire technique. Il consiste en un tableau, qui contient généralement les informations suivantes:
- nombre d'étages dans le bâtiment;
- but de tous les locaux;
- la superficie de chaque pièce et le total;
- hauteur
Selon l'objectif fonctionnel et le type de bien immobilier, l'explication peut contenir des informations supplémentaires. En règle générale, chaque ligne du tableau a une désignation de lettre correspondant à l'abréviation du plan.
L'explication remplit une fonction de référence afin qu'il soit possible de "gérer" l'espace de la pièce sur papier.
Pourquoi pourriez-vous avoir besoin d'un document?
Une explication des lieux sera tout d’abord requise lors de l’enregistrement des droits de propriété ou lors de la légalisation du réaménagement d’immeubles résidentiels ou non résidentiels (dans le cadre du plan technique BTI). Lors de la construction d'un nouveau bâtiment, le développeur est tenu de commander la production du document et de le fournir lors du processus de mise en service.
Dans certaines régions de notre pays, lors de l'enregistrement d'immeubles à plusieurs appartements pour l'enregistrement cadastral, le service d'enregistrement nécessite, en plus de tous les documents, une explication qui doit être jointe au plan technique de l'immeuble.
Lors de la demande de prêt hypothécaire auprès d'une banque, une explication doit être jointe à l'ensemble des documents.

Explication à la terre
Bien que le terrain ne soit pas un bâtiment résidentiel ou non résidentiel, il existe néanmoins un type d'explication particulier. Le document contient des informations permettant d'identifier le site, à savoir:
- données de zone;
- symboles qui ont été mis sur le plan;
- des informations sur les bâtiments qui s'y trouvent;
- indicateurs numériques et qualitatifs.
La déclaration est jointe au plan directeur. Tout de même BTI est engagé dans la production de tels documents.

Immobilier résidentiel
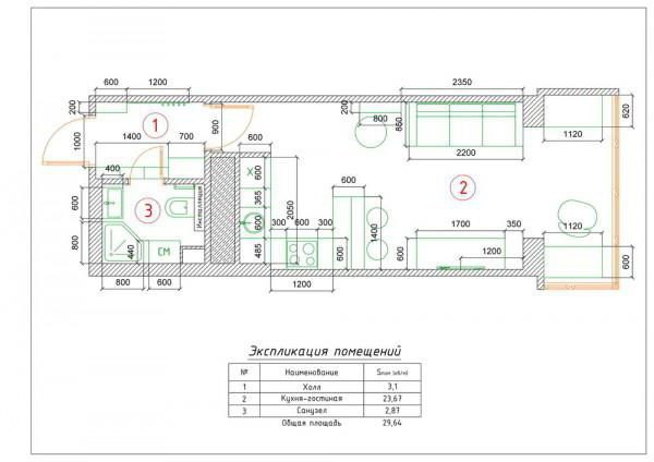
L'explication des locaux destinés au logement doit contenir les informations suivantes:
- taille de l'appartement;
- zone (le total et la taille de chaque pièce et de toutes les pièces utilitaires et sanitaires);
- adresse détaillée de l'objet (ville, rue, numéro de la maison et de l'appartement);
- le but fonctionnel de la propriété (le but de chaque pièce est également indiqué).
C'est-à-dire que le document devrait contenir les principales caractéristiques de l'objet examiné. Cela vous permet d'identifier clairement quelle zone est considérée comme résidentielle et quelle est filiale. Cette question devient pertinente lorsque la taille des services publics est déterminée, car toutes les zones de l'appartement ne sont pas payables, par exemple une loggia et un balcon.
Toutefois, l'explication des locaux d'habitation ne peut être complète sans un plan au sol, établi sous forme de dessin. Le document trace les limites de toutes les pièces et d’autres pièces, y compris une réflexion sur le plan des emplacements où se trouvent les portes et fenêtres, ainsi qu’un balcon. Un tel plan est pertinent lors de l’achat d’un bien immobilier, il permet à l’acheteur de déterminer dans quelle mesure la disposition du logement lui convient.

Explication du bâtiment
Ceci est une déclaration avec des informations sur tous les locaux qui existent dans le bâtiment. La différence principale entre la feuille d'appartement et le bâtiment réside dans la quantité de travail et le nombre d'objets décrits. Par exemple, dans un immeuble à appartements, le nombre d'appartements peut atteindre 100 ou plus, pour une superficie totale de 1 000 mètres carrés ou plus. Et cela n'inclut pas les locaux commerciaux, les parkings et autres pièces de service. Mais, la forme et l'essence de l'explication des prémisses ne change pas de cela.
Documents réglementaires
Il est nécessaire de compiler l'explication des locaux conformément au document GOST 21.509-93 SPDS. Il s'agit d'un ensemble de règles de construction décrivant les procédures et les règles devant être suivies par un spécialiste lors de l'exécution de travaux de mesure.
Le GOST indique également que lors de la compilation de l'explication au stade de la construction ou de la conception, il est nécessaire d'indiquer le nom du matériau à partir duquel les murs ont été construits, à la fois externes et internes. Si la décoration intérieure a été réalisée, les informations à ce sujet sont entrées dans la déclaration. Des informations sont également fournies sur le câblage, l’alimentation en eau, les eaux usées et l’alimentation en gaz.

Où trouver le document
La première option, comment faire l'explication des locaux - contactez le BTI. À ce jour, le bureau de l'inventaire technique remplit ses fonctions, mais sans possibilité d'enregistrer des droits sur des biens immobiliers. Pour ce faire, vous devez contacter le bureau territorial, rédiger une déclaration, payer les frais de l'État. Une fois que le spécialiste des RTC est entré dans l'objet, obtenez une explication entre ses mains. L'ensemble de la procédure ne prend pas plus de 14 jours.
Pour les propriétaires et les détenteurs d'immeubles d'appartements construits après 2013, le promoteur doit fournir une explication.
Outre les deux options ci-dessus, vous pouvez aujourd'hui contacter un organisme privé qui délivrera les autorisations appropriées pour ce type de travail. Ces organisations produisent non seulement des explications, mais également des plans d'étage, réalisent une gamme complète de travaux sur l'inventaire technique de l'immobilier.