Quiconque a un appartement doit avoir sur lui tous les documents nécessaires pour permettre l’utilisation du logement à la discrétion du propriétaire. L'un d'eux est un passeport technique. Qu'est-ce que c'est et comment ce document est rédigé, vous apprendrez davantage.
Concept de base
Avant d’obtenir un passeport technique pour un appartement, vous devez comprendre de quoi il s’agit. TP est donc un document spécial dans lequel vous pouvez voir toutes les informations de base sur l’état actuel des locaux d’habitation. Autrement dit, il est indiqué non seulement la taille de chaque pièce et son emplacement, mais également l’étage sur lequel se trouve l’appartement, etc.
Le document décrit en détail même le matériau de construction du bâtiment, ainsi que la décoration intérieure et extérieure de la pièce. En outre, vous pouvez trouver ici le coût initial du logement, qui est bien entendu inférieur au prix du marché.
A quoi sert un document?
Avant d’obtenir un passeport technique pour un appartement, vous devez savoir pourquoi il est nécessaire et si cela est nécessaire. Il n'y a qu'une seule réponse. Sans cela, vous ne pouvez rien faire avec votre logement. Par exemple, vous n’avez pas le droit d’échanger, de vendre, de léguer.
Vous pouvez l'obtenir après la construction de la maison, lorsque l'inventaire initial des lieux sera effectué. Cependant, tout le monde n'a pas la chance de trouver un appartement dans un nouveau bâtiment. Parfois, ce document doit être restauré, surtout si des modifications importantes ont été apportées à l'espace de vie. Il ne peut être délivré qu'au propriétaire des lieux ou à ses mandataires.
Avant de vous procurer un passeport technique pour un appartement, réfléchissez plus en détail. Pourquoi est-il encore nécessaire:
- Au moment d'acquérir une hypothèque.
- Lors de la demande d'un passeport cadastral.
- Pour charger des paiements pour le logement et les services communaux. Souvent, un office du logement ou une association de propriétaires calcule le montant du paiement en fonction de la taille des locaux, par exemple le chauffage central.
- Pour l'enregistrement d'autres personnes dans leur espace de vie.
- Mettre en œuvre et convenir d'un réaménagement. Cependant, il ne faut pas oublier que personne ne vous permettra de toucher aux structures du capital, car vous risquez de causer de graves dommages à l'ensemble du bâtiment (des fissures apparaîtront, la structure deviendra moins durable).
Ensuite, réfléchissez à la question de savoir comment obtenir un passeport technique pour un appartement.
Types de fiches techniques
Il convient de noter qu'il existe plusieurs types de ces documents:
- Locaux TP. Il s'agit d'informations partielles sur la superficie et la disposition des pièces d'un appartement particulier. C'est-à-dire qu'il est considéré comme un extrait de la fiche technique de la structure entière.
- Bâtiment TP. Il contient déjà des informations générales complètes sur l'ensemble de la structure: année de construction, matériaux utilisés, nombre d'étages et autres informations.
Où devrais-je aller?
Le seul organisme qui effectue cette procédure est le Bureau of Technical Inventory. De plus, vous devez certainement contacter le lieu de résidence, car c’est dans l’administration municipale que se trouvent toutes les données de vos locaux d’habitation. Dans cette organisation, vous recevrez un document d'un échantillon spécial, décrivant des informations détaillées sur votre appartement.
Naturellement, pour postuler au RTC, il est nécessaire de préparer un paquet de documents sans lequel la procédure est impossible. Bien entendu, la préparation d’un passeport technique prend un certain temps. Cependant, deux à trois semaines suffisent.
Naturellement, vous devrez également contacter l’Office du logement ou l’Association des propriétaires pour obtenir des informations sur le compte personnel.Si vous ne pouvez pas effectuer vous-même la procédure, vous devez également vous rendre chez un notaire qui peut attester la procuration de la personne indiquée. En principe, ces organisations sont complètement laissées pour terminer l’enregistrement du passeport.
Quels sont les documents nécessaires?

Pour qu'un employé de RTC traite votre problème, il ne suffit pas de venir le voir pour lui exprimer son désir. Vous pouvez commander un passeport technique pour un appartement uniquement lorsque vous fournissez le jeu de documents nécessaire. Vous aurez besoin de:
- Preuve de votre identité (passeport).
- Une copie certifiée conforme et le document original qui confirme votre propriété de l'espace de vie.
- Compte personnel du logement et des services collectifs (si l'appartement n'a pas été privatisé).
- L'original et une copie du certificat de décès (si vous devez établir un héritage).
- Une procuration certifiée par un notaire (si vous ne pouvez pas participer vous-même à la procédure et que votre représentant fera tout).
- Certificat de paiement de la taxe d'état. Sa taille peut être différente. Tout dépend de la rapidité avec laquelle vous avez besoin de TP.
- Déclaration. Vous y indiquez le but de cette procédure.
Ces documents pour le passeport technique de l'appartement constituent la liste principale, qui peut être complétée. Vous devriez apprendre la liste complète à votre BTI local.
Qu'est-ce qui est indiqué dans le passeport technique?

Voyons maintenant plus en détail quelles données devraient être enregistrées dans le document présenté:
- Le comté où votre maison est située.
- La zone et l'adresse complète indiquant le numéro de la ville, de la rue, de la maison (ou du bloc).
- L'étage sur lequel se trouve votre appartement.
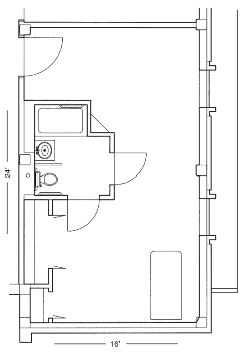
- Plan d'étage.
- Les changements qui ont été effectués dans la salle après l'achèvement de la construction.
- Rendez-vous de l'espace de vie.
- La surface totale de l'appartement dans son ensemble et de chaque pièce en particulier.
- Numéros cadastraux et d'inventaire.
- Année de construction du bâtiment.
- Le matériau dont sont faits les murs principaux, les cloisons et les plafonds.
- Caractéristiques de la révision (si c'était).
- Type de communications d'ingénierie.
Comme vous pouvez le constater, les experts en technologies de l’information et des technologies effectuent un travail fastidieux. Naturellement, afin d’obtenir le document soumis plus rapidement, vous pouvez commander un passeport technique pour un appartement contre paiement. Bien sûr, si votre direction BTI fournit de tels services.
Validité du passeport
Ce paramètre n'est donc pas limité par la loi applicable. Toutefois, cette déclaration est valide si vous n’avez apporté aucune modification importante à votre espace de vie. De plus, tous les 5 ans, il est nécessaire de ré-inventaire de l'appartement. Naturellement, simultanément, un nouveau certificat d'enregistrement est délivré au propriétaire. Cependant, cette norme n’est pas stricte et n’est donc souvent pas appliquée.
Si vous effectuez une refonte majeure, y compris le transfert de cloisons murales, vous allez vendre votre bien, en faire don ou le léguer à quelqu'un, vous devrez alors réémettre le passeport technique de l'appartement.
Ainsi, le document soumis peut être considéré comme un document dont la durée de conservation n'est pas spécifiée. Par conséquent, sa restriction est considérée comme une violation de la loi, pouvant entraîner une responsabilité.
Ordre d'inscription
Ainsi, le passeport technique de l'appartement (vous savez déjà où l'obtenir) se fait en plusieurs étapes:
- Vous devez d’abord rédiger une demande et soumettre tous les documents requis au BTI. Si nécessaire, vous devrez attendre l'arrivée d'un technicien qui effectuera toutes les mesures nécessaires.
- Ensuite, vous devez payer les frais de l'État. Tout dépend de la rapidité avec laquelle vous devez obtenir ce document. Vous pouvez le payer à n'importe quelle succursale de banque ou à la caisse du Bureau de l'inventaire technique.
- L'obtention d'un passeport technique pour un appartement implique la vérification de toutes les données par les employés de BTI. Cela peut prendre du temps.Ensuite, une date vous sera attribuée pour obtenir une fiche technique. Dans ce cas, vous devriez recevoir un reçu confirmant que vos documents ont été acceptés par le RTC.
- Si nécessaire, un technicien vous sera envoyé, qui enregistrera toutes les données nécessaires.
- La dernière étape consistera à obtenir le document convoité. Veuillez noter que le reçu et le passeport doivent être avec vous.
Comme vous pouvez le constater, l’obtention d’un passeport technique pour un appartement implique une certaine procédure.
Quelles difficultés peuvent survenir?
Nous devons maintenant examiner la question des difficultés que vous rencontrerez lors de l’obtention d’un certificat d’enregistrement. Tout d'abord, il est nécessaire de prendre en compte le fait que certains certificats ont un délai de prescription limité. En outre, vous devrez peut-être payer pour eux.
Une autre difficulté peut être considérée comme le manque d’informations nécessaires pour obtenir le document soumis. Naturellement, le passeport technique BTI pour un appartement peut être délivré gratuitement, mais cela prendra plus de temps.
La bureaucratie est un autre problème assez difficile à résoudre, bien que la procédure ne puisse être considérée comme difficile.
Conseils utiles
Avant d'acheter un appartement, essayez de vérifier la disponibilité d'un passeport technique. Faites attention à la date de son exécution. Renseignez-vous sur les modifications apportées dans l'appartement, si elles sont indiquées dans le plan. Si quelque chose n'est pas pris en compte, la fiche technique devra être refaite et la transaction d'achat et de vente pourrait être invalidée. Dans ce cas, vous pouvez facilement rencontrer des fraudeurs.
Si vous avez l'intention d'apporter des modifications à votre espace de vie, coordonnez-les d'abord avec des spécialistes. Le travail proposé ne peut peut-être pas être réalisé, car ils peuvent nuire à l'ensemble du bâtiment.
Vous pouvez délivrer un passeport technique pour l'appartement (vous connaissez déjà la période de validité) vous-même ou avec l'aide de votre représentant, à qui vous devrez remettre une procuration. Vous pouvez également contacter une agence spéciale ou un avocat. Ils feront tout correctement et rapidement, mais les services de tels spécialistes coûteront très cher.
Caractéristiques TP
Le passeport technique de l'appartement lors de la vente est simplement nécessaire. Cependant, ce document ne doit pas être confondu avec du papier tel qu'un plan d'étage. Il est lié aux coordonnées des points de retournement du bâtiment sur le sol. En d'autres termes, le plan est simple, il indique uniquement la taille et la superficie de l'appartement. Il n'y a pas plus de données détaillées ici.
Le certificat d'immatriculation diffère également du cadastre. Il n'y a aucune indication dans ce dernier qui parle de valeur d'inventaire de l'appartement. Et ils sont nécessaires si vous effectuez des transactions notariées. Autrement dit, le certificat d'enregistrement n'est pas considéré comme obligatoire, mais sans lui, il est impossible d'effectuer la procédure d'achat et de vente avec l'appartement.
Le document présenté est également très utile dans le cas où vous avez des voisins sans scrupules à cause desquels votre appartement a été endommagé. Cependant, ils peuvent refuser de vous payer des dommages. Le passeport technique vous aidera à prouver l'état initial de l'espace de vie. Il peut être l’occasion d’établir la valeur marchande de l’appartement. Vous pouvez aller au tribunal avec ce document.
Vous pouvez maintenant contacter le BTI et entamer la procédure pour obtenir un certificat d’enregistrement pour votre logement. Bonne chance et patience!