Très souvent, les personnes ayant un logement privé équipent la maison et le terrain selon leurs goûts et leurs besoins. En règle générale, toutes ces actions sont effectuées sans autorisation, sans coordination avec les autorités compétentes. Mais si un tel propriétaire veut vendre sa propriété, il aura besoin d'un plan pour l'organisation de la planification du terrain (SPOSU). Si le rééquipement n’est que prévu, il est logique d’approuver au préalable les documents nécessaires par les autorités locales.
C'est quoi
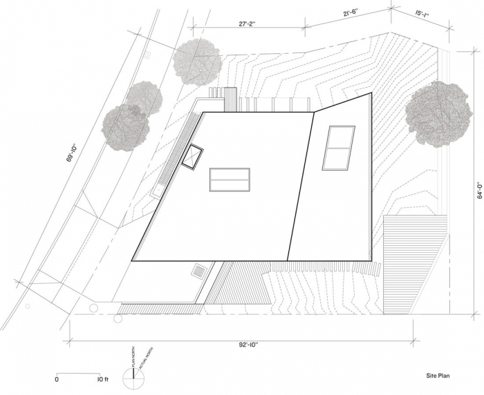
Ce document est une parcelle de terrain au 1/15 000. Il indique sa taille exacte et son emplacement. Ensuite, tous les bâtiments et les canalisations d'égout, l'approvisionnement en eau, l'électricité, la gazéification sont marqués. Les objets à ériger sont également marqués. En outre, une partie écrite est fournie, qui indique toutes les caractéristiques des terrains et des bâtiments prévues par la législation de la Fédération de Russie.
Ce schéma d'organisation de la planification du terrain est approuvé pour les personnes physiques et morales de la municipalité. La documentation et la liste des références seront différentes (construction privée et autres immobilisations).
Qui peut faire un plan
Cette question est régie par le code de l'urbanisme de la Fédération de Russie. Il est dit que le plan pour l'organisation de la planification d'un terrain peut être compilé indépendamment par un individu. Cela est possible à condition que le rédacteur soit propriétaire du site. De même que les travaux à venir n’affecteront pas le niveau de sécurité d’autres installations. Sinon, le plan est élaboré par l'entrepreneur individuel ou les entreprises qui ont reçu la licence appropriée.
Exigences du propriétaire privé
Pour que la construction et la conversion à venir soient légales, une liste des documents suivants doit être compilée:
- Demande sous la forme requise.
- Schéma de l'organisation de la planification du terrain, approuvé par les autorités compétentes.
- Preuve que le site est en votre propriété.
- Certificat cadastral pour le site.
- Relevé topographique de la zone avec la définition du périmètre de la zone souhaitée.
- Schéma de la maison et autres bâtiments.
En plan graphique
Le plan d'organisation de la planification suppose les éléments suivants:
- Numéro de série Il est attribué individuellement à chaque projet.
- La surface totale de la parcelle entière.
- La surface allouée au développement, en pourcentage. Assurez-vous de joindre les calculs.
- Le nombre total de mètres d'un immeuble résidentiel.
- Nombre d'étages, hors sous-sol ou sous-sol. Détermination de la hauteur totale du bâtiment.
- Vue de la clôture entourant le site.
- En quoi consistera la construction?
- Désignation conventionnelle d'objets.
- Saisie du plan des bâtiments existants.
- Identification des zones publiques, le cas échéant.
- Désignation de l'espace des brèches sanitaires, des territoires protecteurs et protecteurs.
- Dessiner des lieux d’entrées potentielles, ainsi que des approches.
- Planifiez l'amélioration proposée.
Informations écrites
En outre, la préparation de la documentation complète fournit une description détaillée sous forme de texte de ces caractéristiques:
- Propriétés de ce site (type de sol, présence d’eaux souterraines, pente horizontale de la zone).
- Désignation des distances sanitaires et de protection nécessaires entre les objets. S'il existe un risque de litige, fournissez des liens vers la législation de la Fédération de Russie.
- Conformité de ce plan avec toutes les exigences nécessaires.
- Détailler le plan pour l'amélioration proposée.
Caractéristiques FEI
Les zones désignées sont destinées à la construction de maisons, de dépendances et d’entretien ménager. Au niveau national, ils ont un statut spécial. Les autorités locales sont tenues de fournir à cet espace toutes les communications nécessaires (électricité, approvisionnement en eau centralisé et gaz). La construction de routes sur des terres de cette importance est également fournie. En hiver, la municipalité est tenue de dégager la chaussée.
Depuis 2008, par un décret de la Cour constitutionnelle de la Fédération de Russie, les droits de construction et de résidence sur des terres appartenant à différentes catégories ont été égalisés. Désormais, les propriétaires de terrains destinés au logement privé, de parcelles subsidiaires personnelles (LPH), de pays et de jardins bénéficient des mêmes possibilités.
Pour la construction dans le pays ou dans le pays, vous avez également besoin d'un plan pour l'organisation de la planification de la terre. Les exemples peuvent être très différents. Cela dépend de la taille de la zone et des objectifs de construction.
Sélection du site
L’évaluation des options d’achat doit être fonction de l’objet de l’achat. Si vous envisagez de vivre de manière permanente dans une maison construite, il est préférable de choisir un lieu où les communications ont échoué. Si ce n'est pas le cas, il devrait y avoir une possibilité de connexion indépendante.
Les endroits exacts pour le raccordement à la maison de l’approvisionnement en eau, des eaux usées, du gaz et de l’électricité devraient inclure un plan pour l’organisation de la planification du terrain. Des exemples de leur emplacement sont généralement disponibles aux administrations locales, chargées de l’approbation des documents. Faites attention à la présence de routes, de transports en commun, d’institutions éducatives et médicales, de magasins.
Si vous devez vous reposer sur le site, il est judicieux de vous installer à proximité du réservoir, à l'écart des grands axes routiers et de la ville. Vous devez savoir que les terrains destinés aux logements dans les zones résidentielles sont beaucoup plus coûteux que dans le jardinage. Compte tenu de ces caractéristiques, il y aura un plan différent pour l'organisation de la planification du terrain. L’échantillon peut être standard, mais des solutions originales sont possibles.
Règlement pour les personnes morales
La préparation d'un ensemble de documents pour la construction de la capitale de cette catégorie de citoyens est très vaste. Le schéma d'organisation de la planification du terrain est l'un des 12 points nécessaires. La liste de références comprend:
- Demande de compilation d'une RAM.
- Permission ou autre document ayant contribué au début des travaux sur le projet.
- Tâche de conception.
- Un croquis du circuit.
- Schéma architectural.
- Description de la localisation géographique et de la signification sociale de la terre.
- Attribution de territoire à la circulation et aux piétons.
- Détermination de la densité de fret estimée.
- Confirmation technique de la conformité du terrain avec le plan de construction déclaré.
- Schéma de construction.
- Documents établissant la propriété du site.
- Le document sur l'enregistrement cadastral des terres.
- Passeports techniques pour les installations déjà construites situées sur ce site.
- Documents établissant la propriété des bâtiments situés dans la zone de la construction proposée.
- Image topographique de la zone indiquant le périmètre du site.

Pour les personnes morales, le plan d'organisation de la planification du site est élaboré par une organisation disposant de la licence appropriée pour effectuer ce travail. Il devrait contenir les données suivantes sous forme de texte:
- Une description détaillée du site sur lequel la construction est prévue. Caractérisation du sol, présence d'eaux souterraines et autres caractéristiques.
- Détermination précise de toutes les distances conçues pour respecter les normes sanitaires et de sécurité.
- La justification que le schéma d'organisation architecturale et d'aménagement du territoire répond aux normes d'urbanisme et de sécurité.
- Justification des propriétés techniques et économiques de l'installation proposée.
- Planifiez l'optimisation du trafic sur les bâtiments et au-delà.
- Schéma de communications alléguées et justification de sa pertinence.
- La désignation exacte des lieux de construction des bâtiments, et la preuve de la justesse de ce choix.
- Preuve que le schéma d'organisation de la planification du territoire contribue à protéger l'objet contre d'éventuelles catastrophes naturelles.
Dessin graphique
Ce document suppose la disponibilité des données:
- Application papier précise de tous les bâtiments, structures de démolition, porches et approches existants et proposés.
- Sites sur lesquels passent les limites des lieux publics.
- Détails des communications à venir - électricité, eau, gaz. Désignation de connexion d'entreprise aux réseaux de villes.
- Planifier la construction progressive des bâtiments, y compris l'emplacement du passage des véhicules de construction.
- Schéma d’action dans les situations d’urgence (incendie, inondation, etc.).
- Définition du trafic sur le territoire de l'installation et au-delà.