Les distances pendant la construction entre les maisons, les clôtures, les services publics d’alimentation en eau et en électricité doivent être établies sur la base des normes de la SNiP. Ces règles créent un environnement de vie sûr pour toutes les personnes vivant dans cette zone.
Quelle distance devrait être entre les bâtiments de plusieurs étages?

Les instituts de design et les usines de construction résidentielle prennent les distances entre tous les bâtiments industriels, publics et résidentiels au stade de la conception de la structure. SNiP 2.07.01-89 "Planification et développement des agglomérations urbaines et rurales" est appliqué, ainsi que la section SP 52.13330, section 15 "Exigences de sécurité incendie".
Selon le code de l'urbanisme de la Fédération de Russie, les bâtiments résidentiels d'une hauteur de 2 à 3 étages ne doivent pas être situés à moins de 15 m, les bâtiments de plus de 4 étages doivent être distants d'au moins 20 m et de minimum 10 m pour les grands côtés.
Sécurité incendie dans les bâtiments à plusieurs étages

La sécurité incendie des bâtiments à plusieurs étages est assurée non seulement par l'emplacement des maisons à une distance de sécurité, mais également par l'utilisation d'équipements modernes de lutte contre l'incendie et de solutions de planification. Les exigences en matière d'évacuation et de lutte contre l'incendie pour les bâtiments à plusieurs étages sont divisées en trois groupes: les bâtiments d'une hauteur de 6 à 9 étages, de 10 à 16 étages et les maisons de plus de 16 étages.
Les exigences de sécurité les plus faibles sont imposées aux bâtiments de 6 à 9 étages, en raison de la longueur des issues de secours. À cet égard, dans les petites villes, il est fréquent que le développement se compose de bâtiments continus de neuf étages. En cas d'incendie, ces maisons sont les plus facilement évacuées. Les dispositifs de désenfumage, en règle générale, sont absents et des cages d'escalier sont aménagées à l'intérieur de la maison, exclusivement à partir de matériaux non combustibles.
Dans les maisons de plus de 5 étages, une échelle de secours supplémentaire est aménagée. Ces escaliers sont placés verticalement et placés sur les balcons des appartements.

Dans les maisons de plus de 10 étages, les escaliers sont de type ouvert ou semi-ouvert. De tels escaliers sont souvent construits à l'extérieur de la maison sous forme de loggias. Également dans les ascenseurs et les cages intérieures, une ventilation d'évacuation de la fumée des matériaux ignifuges est installée.

Il est à noter que le nombre d'escaliers extérieurs dans les nouveaux logements est de plus en plus réduit par rapport à la construction de logements soviétique. Les escaliers extérieurs sont très pratiques à utiliser pendant l’évacuation, mais lors du fonctionnement normal de la maison, il est beaucoup plus pratique d’utiliser des structures internes. La réduction du nombre de structures extérieures est due aux plaintes des habitants des maisons concernant la possibilité que des personnes non autorisées entrent dans la maison et le danger d'utiliser de tels escaliers en hiver. Maintenant, lors de la conception d'un bâtiment de dix étages, pas plus de 1 à 2 escaliers sont fournis.
Hauteur de clôture entre les maisons

Beaucoup de gens veulent fermer leur parcelle avec une haute clôture afin que personne ne puisse espionner ce qui se passe sur le territoire de la maison, ainsi que limiter la pénétration d'invités non invités. Cependant, selon les règles de SNiP, la clôture du site devrait avoir une certaine hauteur, ce qui est dû aux normes de sécurité incendie. En cas d'incendie, le feu peut être projeté sur la clôture, ce qui en augmentera la propagation et l'empêchera de quitter rapidement le territoire inflammable.
Selon la région, la hauteur de la clôture peut varier, les normes fédérales définissant la hauteur entre bâtiments à 1,5 m, tandis que dans les régions éloignées, la clôture entre maisons peut être construite jusqu'à 2,2 m.En lien avec ces différences, il est nécessaire de se concentrer sur les normes du territoire où le développement a lieu.
En outre, la clôture entre les sites devrait bien transmettre la lumière. Un choix idéal serait une clôture en métal ou un filet. Une clôture solide ne peut être érigée sur le site qu'avec l'autorisation de tous les voisins à côté desquels se trouve la maison.
Sans l'autorisation des voisins, seules des clôtures d'une hauteur maximale de 0,75 m sont autorisées.La loi n'interdit pas la construction d'une structure d'une hauteur allant de 1,5 à 2,2 m, la seule condition est qu'une structure supérieure à 0,75 m transmette la lumière.
Normes sanitaires

Les normes sanitaires établissent les distances auxquelles les bâtiments doivent être situés à des fins diverses.
La distance minimale entre la maison et la clôture doit être supérieure à 3 m. La mesure est effectuée à partir du sous-sol du premier étage, si le toit se trouve 0,5 m plus loin que le sous-sol, la distance doit être calculée à partir du point où se termine le rebord du toit.
La pente du toit de la nouvelle maison devrait tomber dans la direction de son site et non de la maison du voisin. La distance entre les petites structures et la clôture doit être d'au moins 1 m.
Les enclos à bétail, les poulaillers et les étables doivent être à au moins 4 m de la clôture. Ceci est fait pour que les voisins ne sentent pas le bétail.
Les exigences sanitaires établissent la distance autorisée pour planter de la végétation par rapport à la clôture. Les arbres de hauteur moyenne sont autorisés à se situer à une distance de 2 m, ceux de grande taille à 4 m, ainsi que les baies et les arbustes ordinaires - à une distance d'au moins 1 m.
Le bain doit être à au moins 5 à 8 mètres de la maison et à 1 mètre de la clôture. Il est permis d’installer une toilette publique sur la rue à une distance d’au moins 15 mètres de la clôture. Cette distance est prévue pour que l’odeur de matières fécales ne se propage pas aux voisins.
Il doit y avoir au moins 1 m entre le garage et la clôture.
Sécurité incendie dans les maisons privées
Distances obligatoires Les maisons de division sont appelées des coupe-feu. Les distances auxquelles il est permis de construire des maisons sont définies de manière à ce que le feu ne se déplace pas d’une maison à l’autre, ainsi que pour le passage des particuliers. équipement si nécessaire.
Les normes de distance entre les maisons sont réglementées par SNiP 2.07.01-89. Selon la réglementation, la construction de maisons privées est divisée en 3 groupes:
- Pierre, béton, matériaux non combustibles.
- Bâtiments en pierre ou en béton avec toits en bois et matériaux ignifugés.
- Bâtiments en bois faits de matériaux à combustion lente et combustibles.
Les distances de feu minimales sont définies en fonction du tableau:
| Pierre, béton et autres matériaux non combustibles | Pierre, béton avec plancher en bois, protégé par des matériaux ignifuges | Constructions en bois constituées de matériaux ignifuges et combustibles. | |
| Pierre, béton et autres matériaux non combustibles | 6 | 6 | 10 |
| Pierre, béton avec des planchers en bois et des matériaux ignifuges | 8 | 8 | 10 |
| Enceintes en bois faites de matériaux combustibles à combustion lente | 10 | 10 | 15 |
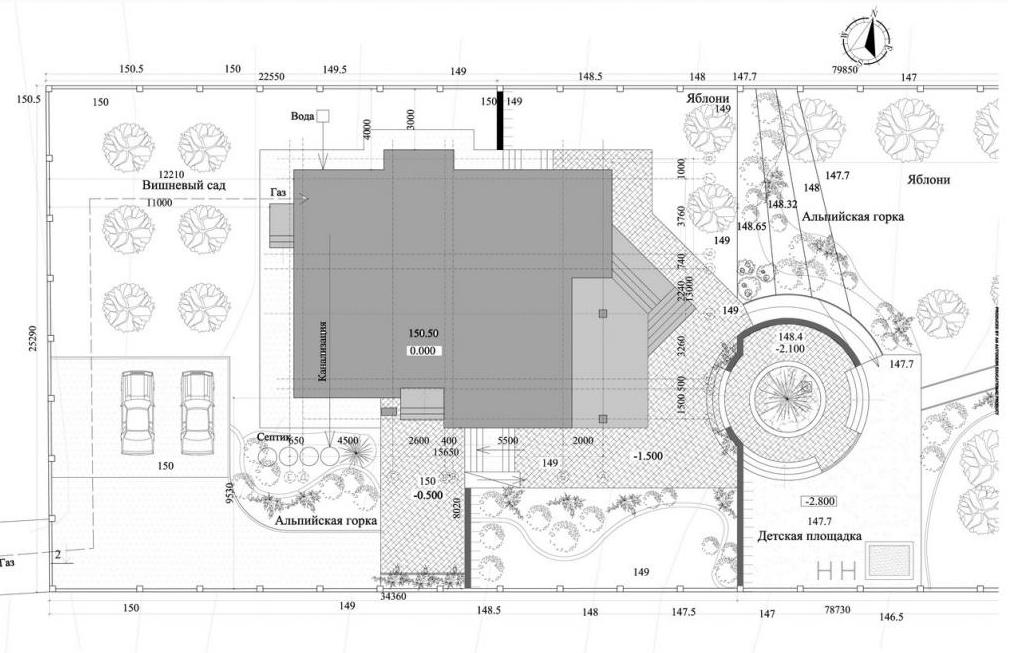
Plan directeur pour la construction d'un chalet d'été

Le plan général pour le développement du site est un dessin précis qui décrit tous les bâtiments du site, la superficie des murs, la conception paysagère prévue sur le site, la taille des structures, le niveau des bâtiments par rapport au sol du premier étage de la maison.
La composition du schéma directeur
Le plan directeur comprend:
- images de tous les bâtiments du site, distance entre la maison et la clôture, indication de l'emplacement des réseaux de gaz, d'eau et de fils électriques;
- données géodésiques sur le chantier de construction;
- une illustration schématique de l'amélioration du site: les chemins, les aires de jeux, les kiosques, etc. doivent être décrits et illustrés;
- l'emplacement d'arbustes, d'arbres et d'un potager.
Le plan directeur, en plus de la partie graphique, doit comporter une documentation de projet. Une documentation détaillée séparée doit être élaborée pour les canalisations d'eau, de gaz et d'électricité avec une description des éléments de réseau sélectionnés.Il est également nécessaire de zoner le territoire de la maison.
Zonage du territoire d'un chalet d'été
Les bâtiments résidentiels peuvent être construits sur des parcelles d’une superficie supérieure à 6 acres. Pour la localisation la plus correcte et la plus efficace des bâtiments sur le site, la méthode de zonage est utilisée. Avant de commencer le processus, il convient de déterminer quelles zones seront présentes sur le site et quel rôle elles rempliront.
Par exemple, si le puits est suffisamment éloigné de la maison, vous devrez parcourir de longues distances chaque fois que vous aurez besoin de puiser de l’eau. La même chose est vraie pour les enclos à bétail.
Mais n'oubliez pas qu'il est strictement interdit d'avoir toutes les structures à proximité. Pour étudier les normes de distance entre maisons et objets, il convient d'utiliser le SNiP 30-102-99, ainsi que le SNiP 30-02-97.

Zones pouvant être placées sur le site
Le territoire de repos. La zone sur laquelle sera placé une aire de jeux, un belvédère, un terrain de jeu. Cette zone ne doit pas être à proximité de matériaux inflammables.
Bâtiments de la maison. Il est préférable de les placer à proximité pour faciliter leur utilisation. Dans ce domaine, il vaut la peine d’avoir des poulaillers, des enclos à bétail, des toilettes publiques et des hangars.
Territoire de la maison. Ici, vous devriez avoir une maison, un garage, un puits et toutes les extensions nécessaires à la vie des personnes.
Un zonage approprié du territoire assurera la vie la plus favorable et la plus importante en toute sécurité aux personnes chez elles. Par exemple, si les toilettes sont trop proches de la maison, une odeur désagréable sera constamment ressentie et l'emplacement des bâtiments à proximité du barbecue augmentera les risques d'incendie.